设计师:星艺设计师作品数量:1078

设计级别:设计师    设计经验:11年
擅长风格:简约,田园,简欧,中式,欧式,美式,现代

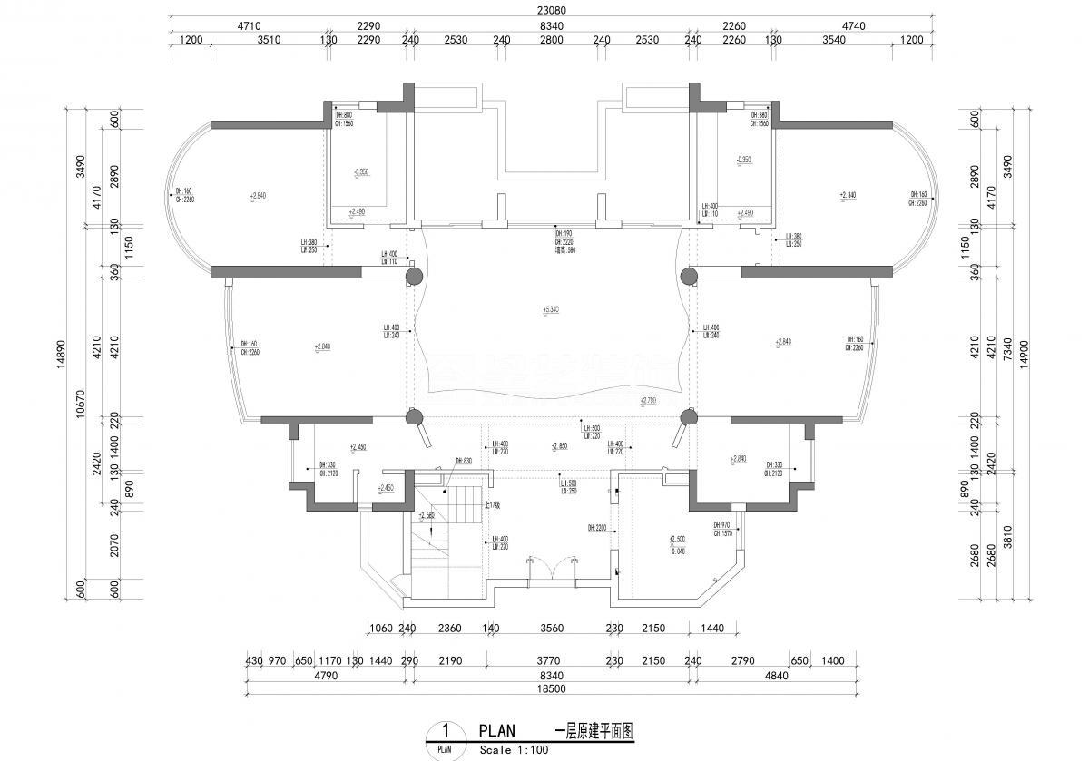
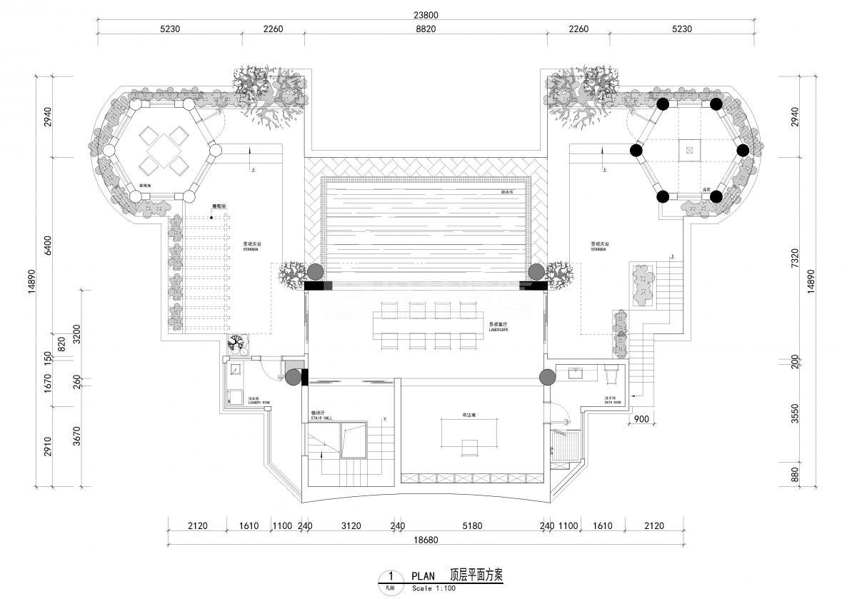
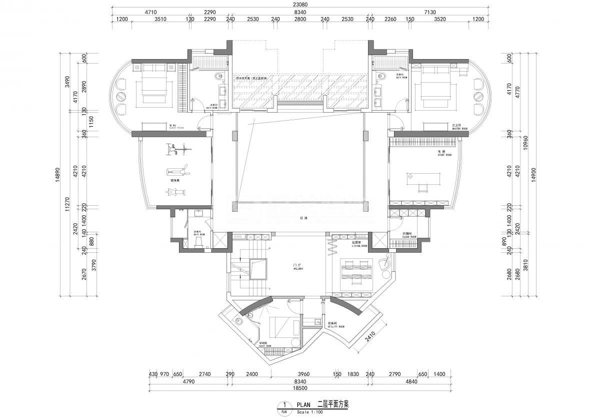
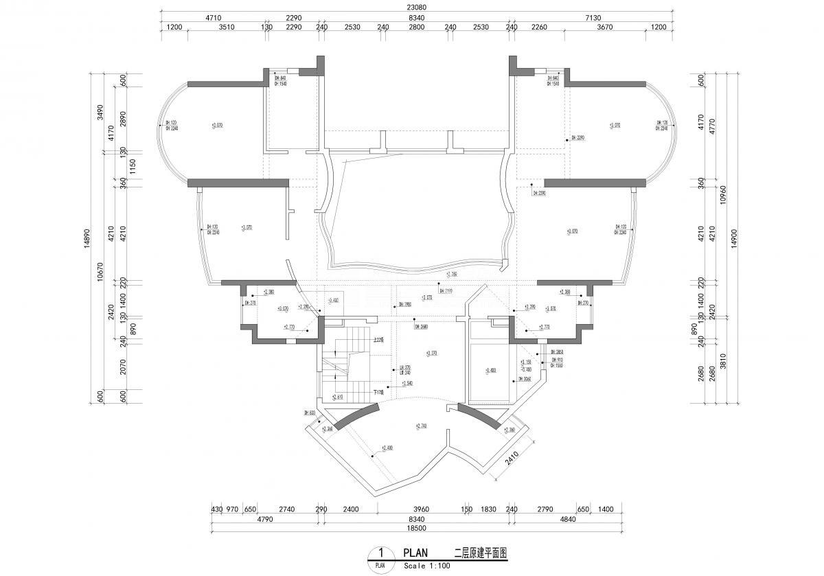
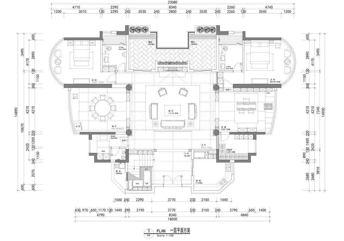
珠江帝景-优雅的空中行宫

户型:复式 面积:668㎡ 设计风格:新中式 工程造价:180万

设计说明

{优雅的空中行宫} 由于珠江帝景有着两岸优越的地理环境又立于顶层的多层复式大宅再融入有深度的中式文化元素,从而延伸出优雅的空中行宫 的设计主题。在本案的空间布局上讲究方正、对称的布局形式,讲究整体的布局和风水格调高雅造型朴素优美,色彩浓厚而成熟。 家俱分两种一楼用的是传统的家具,二楼用现代简洁再辅以字画、盆景,陶瓷、古玩、屏风等装饰品,追求的是一种修身、齐家的 生活境界在整体的色彩选择上以庄重的灰色和木色为主,体现中式文化深沉、厚重的底蕴。

[ 展开 ]
首页 设计案例 设计精英 装修报价 在线咨询
装修快速预约
您的姓名 : *
联系方式 : *
楼盘名称 :
建筑面积 :
取消

*为了您的权益,您的隐私将被严格保密