设计师:星艺设计师作品数量:1078

设计级别:设计师    设计经验:11年
擅长风格:简约,田园,简欧,中式,欧式,美式,现代

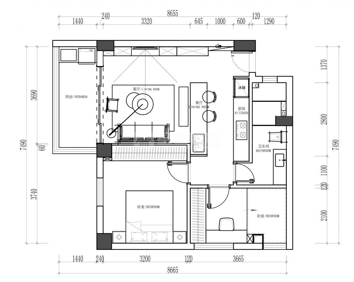
旧宅改造-邂逅工业风之家

户型:两室一厅 面积:60㎡ 设计风格:现代 工程造价:12万

设计说明

本项目是30年的旧宅改造,业主是一对90后夫妻,从他们的生活方式入手展开设计,打破原有户型格局,开放式厨房,岛台餐桌,鞋柜电视柜融为一体的收纳墙。原水泥墙面的再处理,在保留部分老宅的余温的同时,注入新的生命力。

[ 展开 ]
首页 设计案例 设计精英 装修报价 在线咨询
装修快速预约
您的姓名 : *
联系方式 : *
楼盘名称 :
建筑面积 :
取消

*为了您的权益,您的隐私将被严格保密