设计师:星艺设计师作品数量:1078

设计级别:设计师    设计经验:11年
擅长风格:简约,田园,简欧,中式,欧式,美式,现代

广东中南人防防护设备工程有限公司

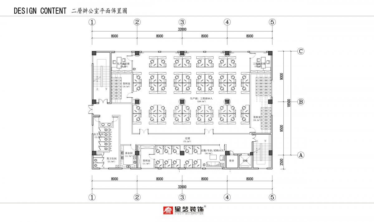
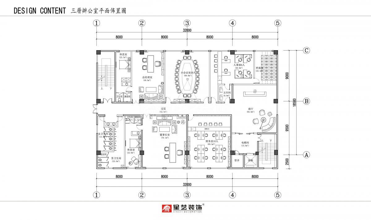
户型:商业空间 面积:12800㎡ 设计风格:现代 工程造价:780万

设计说明

此项目为南沙一工业园的公共空间和员工宿舍,业主家里的装修是多年前星艺给他装修的,比较满意,这些厂房公共区域跟员工宿舍这块交给我们公司来做,因为是工装项目,对材料的要求不高,在多次的沟通中,公司最终同意客户想法,不采用公司材料,选取一些低廉的材料,从而节省了很多成本。但扇灰这块,因为公司有一整套的施工流程,没办公满足客户对于价格的要求,只好扇灰再找其他公司做。

[ 展开 ]
首页 设计案例 设计精英 装修报价 在线咨询
装修快速预约
您的姓名 : *
联系方式 : *
楼盘名称 :
建筑面积 :
取消

*为了您的权益,您的隐私将被严格保密