设计师:星艺设计师作品数量:1078

设计级别:设计师    设计经验:11年
擅长风格:简约,田园,简欧,中式,欧式,美式,现代

天光

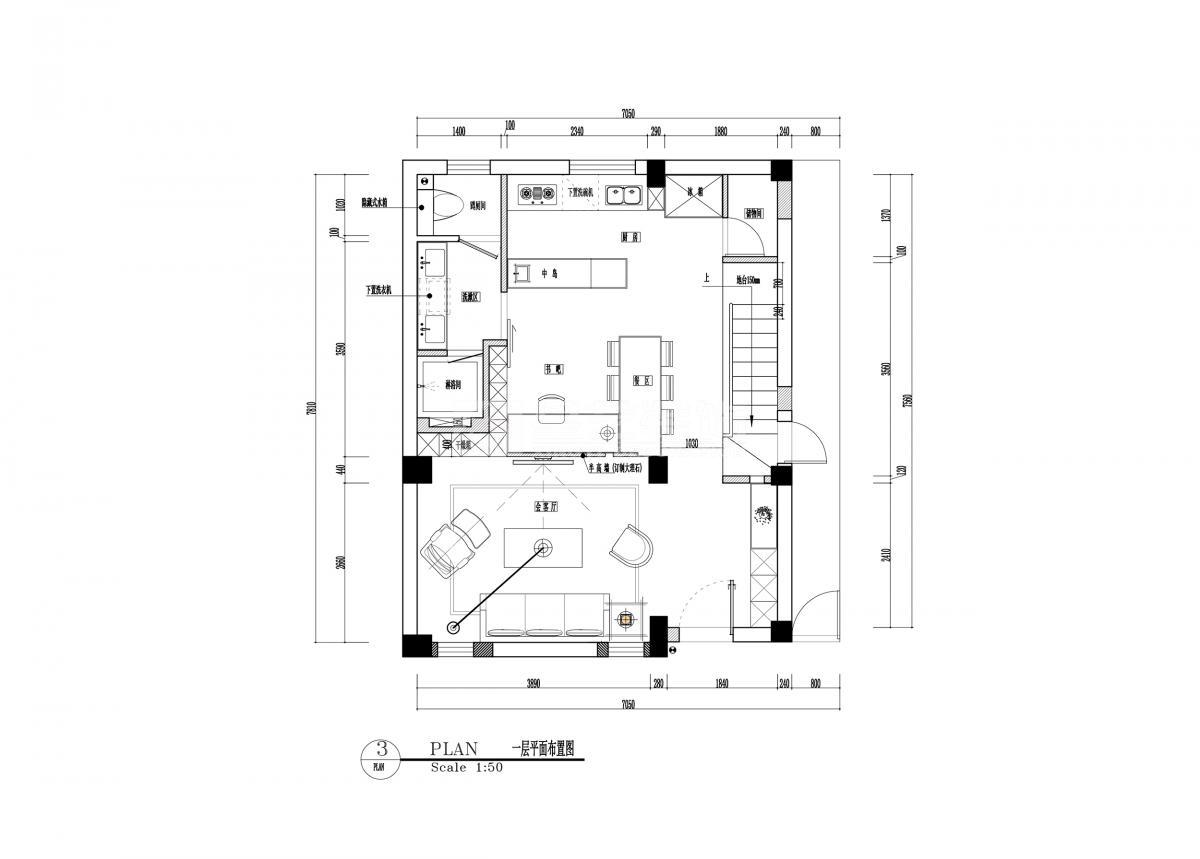
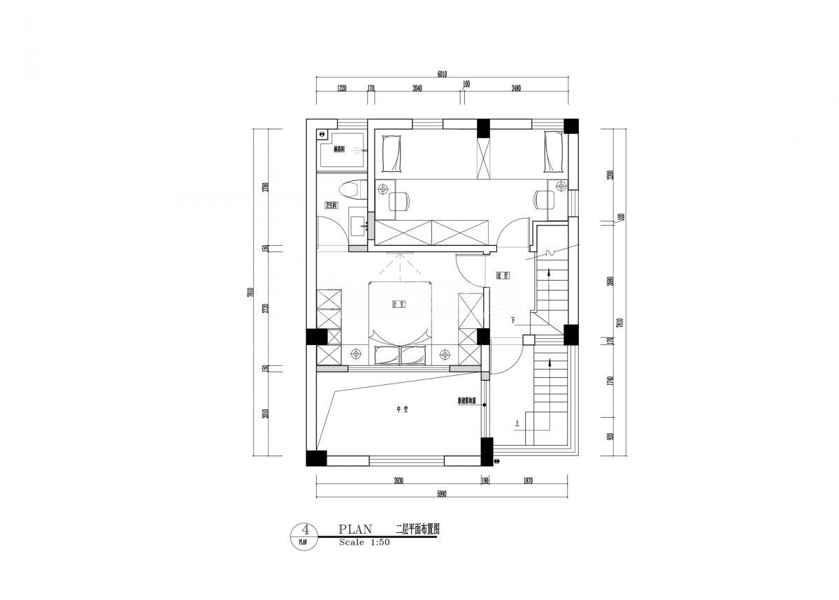
户型:三室两厅 面积:180㎡ 设计风格:北欧 工程造价:24万

设计说明

本案是一个4口之家,有两个小朋友,对于他们,我觉得构成家的最重要元素应该是阳光,放松,互动与储物, 给男主人一个放松冥想,充电的空间 给女主人一个功能,储物,舒适的家 给小朋友一个学习,睡眠,游戏的乐园。 通过对原有户型的分析,我把一层的所有间隔墙体都打掉,将餐厨庭一体化增加空间的对流与采光,也同时增加了不同功能区的联系与互动。 把动区放在一楼,二楼主要作为睡卧区,中空位的保留,楼梯造景与二楼的落地窗,让两层空间有个很好的链接 材质上采用灰色的水磨石,橡木饰面,以白色和木色为主色调打造一个放松,慵懒舒适的家

[ 展开 ]
首页 设计案例 设计精英 装修报价 在线咨询
装修快速预约
您的姓名 : *
联系方式 : *
楼盘名称 :
建筑面积 :
取消

*为了您的权益,您的隐私将被严格保密