020-38844643
首页
装修案例
精品案例
获奖案例
金牌设计
设计精英
杰出团队
星钻工程
热装小区
施工标准
金牌监理
客户见证
优质选材
工地展览
售后服务
关于我们
公司简介
星艺视频
公司新闻
联系方式
创始人
设计师:
星艺设计师
作品数量:1078
设计级别:设计师
设计经验:11年
擅长风格:简约,田园,简欧,中式,欧式,美式,现代
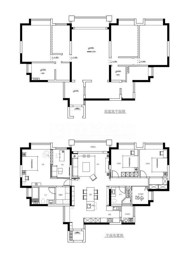
翡翠绿洲
户型:三室两厅
面积:160㎡
设计风格:简约
工程造价:20万
设计说明
原有的户型客厅、餐厅比例很不合理,通过户型改造,客厅、餐厅及厨房空间动线更合理、空间更宽敞了,简约的设计让家更加放松、自在、舒适。
[ 展开 ]
立即预约
在线咨询
首页
设计案例
设计精英
装修报价
在线咨询
装修快速预约
您的姓名 :
*
联系方式 :
*
您的城市 :
请选择市...
佛山
广州
请选择区...
楼盘名称 :
建筑面积 :
m²
取消
*为了您的权益,您的隐私将被严格保密