设计师:星艺设计师作品数量:1078

设计级别:设计师    设计经验:11年
擅长风格:简约,田园,简欧,中式,欧式,美式,现代

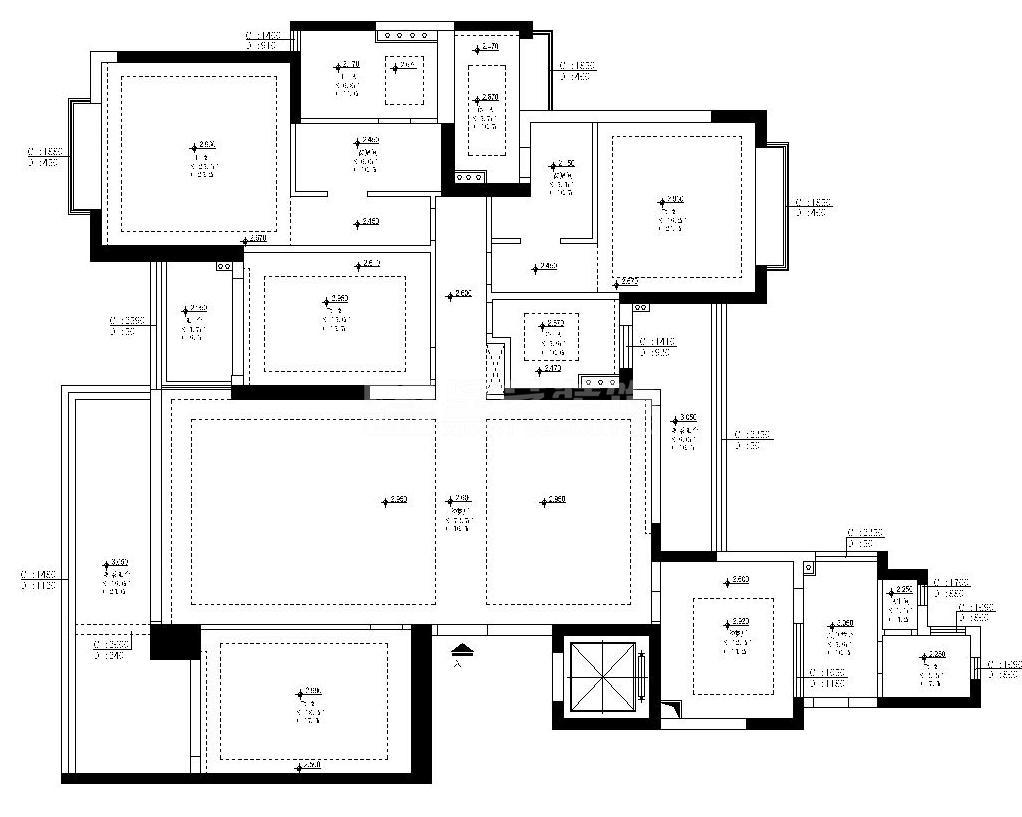
南天名苑

户型:五室两厅 面积:298㎡ 设计风格:现代 工程造价:万

设计说明

家是一个人能够完全开放自己,展现全部个性和生活习惯的地方,即使再热爱工作,也需要一个转场的片段,享受独处的片刻或与朋友把酒言欢。居住模式不断向个性化方向发展,从住宅到私宅不只一字之差,更多的是人和房子之间的关系的升级。

[ 展开 ]
首页 设计案例 设计精英 装修报价 在线咨询
装修快速预约
您的姓名 : *
联系方式 : *
楼盘名称 :
建筑面积 :
取消

*为了您的权益,您的隐私将被严格保密