设计师:星艺设计师作品数量:1078

设计级别:设计师    设计经验:11年
擅长风格:简约,田园,简欧,中式,欧式,美式,现代

帝景大厦

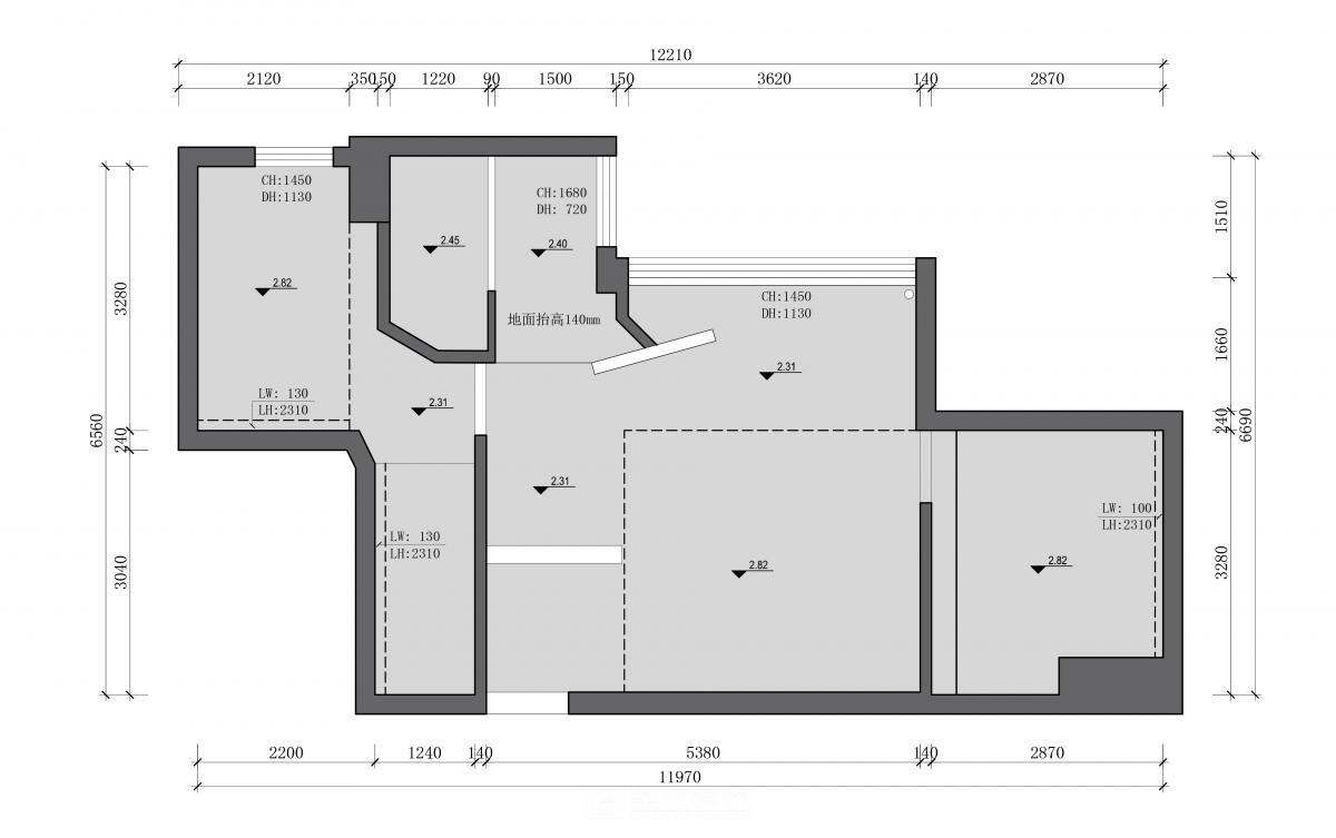
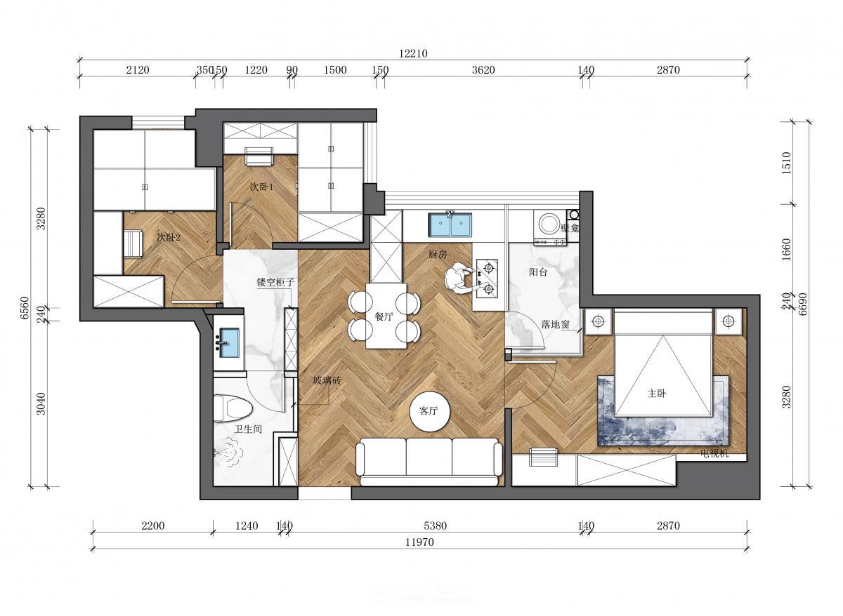
户型:三室一厅 面积:80㎡ 设计风格:简约 工程造价:20万

设计说明

业主一家4口,要求所有房间谁都要有采光,主卧借助阳台的光照进来,开放式厨房和阳台紧挨,我们用玻璃隔断阻碍油烟的味道。卫生间做了干湿分区,洗手台外置,这样一家人洗漱也不会拥挤。洗手台前面坐了玻璃砖这样光线就可以透过来,不会是一个暗的空间。客餐厅整体一个空间,客厅是不需要电视,写作业可以在餐桌,父母坐在沙发上也是可以看到孩子的行动,安全和全家活动氛围拉升。

[ 展开 ]
首页 设计案例 设计精英 装修报价 在线咨询
装修快速预约
您的姓名 : *
联系方式 : *
楼盘名称 :
建筑面积 :
取消

*为了您的权益,您的隐私将被严格保密