020-38844643
首页
装修案例
精品案例
获奖案例
金牌设计
设计精英
杰出团队
星钻工程
热装小区
施工标准
金牌监理
客户见证
优质选材
工地展览
售后服务
关于我们
公司简介
星艺视频
公司新闻
联系方式
创始人
设计师:
陈汉州
作品数量:27
设计级别:设计师
设计经验:22年
擅长风格:简约,简欧,新中式,轻奢,意式,中古,侘寂风
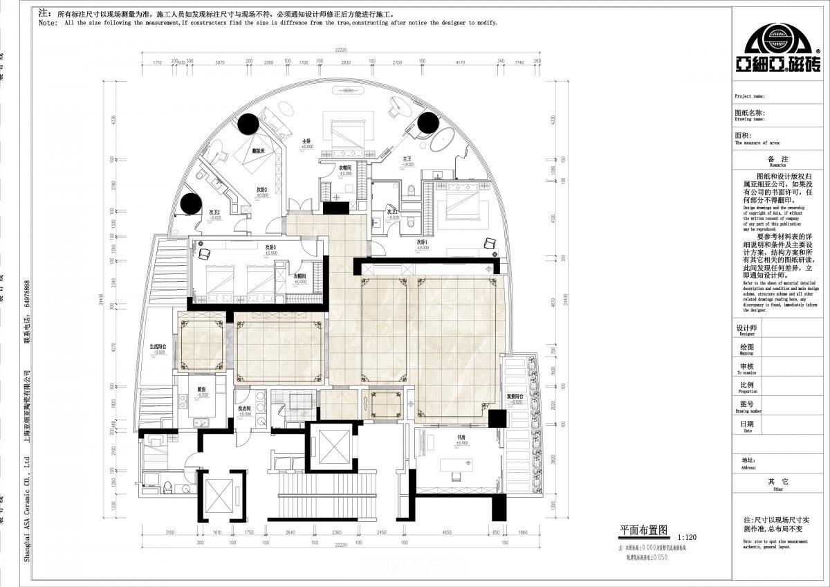
天誉半岛
户型:平层跃式
面积:400㎡
设计风格:新中式
工程造价:80万
设计说明
本空间以现代新中式为核心设计风格, 融合传统中式美学与现代设计语言, 打造出兼具东方意境与当代舒适感的居住空间,
[ 展开 ]
立即预约
在线咨询
首页
设计案例
设计精英
装修报价
在线咨询
装修快速预约
您的姓名 :
*
联系方式 :
*
您的城市 :
请选择市...
佛山
广州
请选择区...
楼盘名称 :
建筑面积 :
m²
取消
*为了您的权益,您的隐私将被严格保密