020-38844643
首页
装修案例
精品案例
获奖案例
金牌设计
设计精英
杰出团队
星钻工程
热装小区
施工标准
金牌监理
客户见证
优质选材
工地展览
售后服务
关于我们
公司简介
星艺视频
公司新闻
联系方式
创始人
设计师:
李秋萍
作品数量:13
设计级别:资深设计师
设计经验:22年
擅长风格:简约,简欧,中式,欧式,美式,现代,极简,新中式,日式,奶油,意式,中古,法式,宋氏美学
融古于今,轻韵重境,东方雅致的现代新生
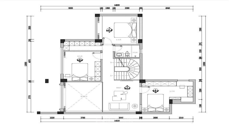
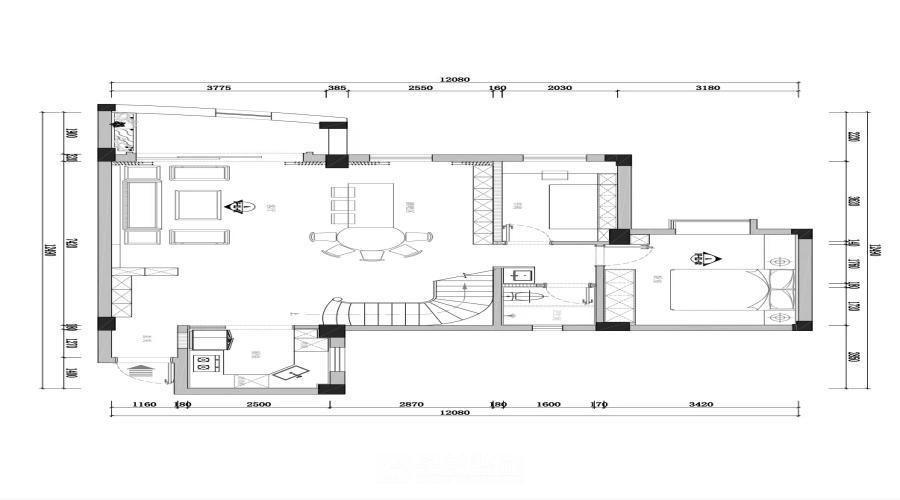
户型:复式
面积:210㎡
设计风格:新中式
工程造价:80万
设计说明
业主本来就住在这个小区,属于改善置换,夫妻2人,有1儿一女,预留长辈房间,业主讲风水,房子望江,考虑南北对流,楼梯希望可以通到屋面,餐厅位置比较小,设计上考虑楼梯的造型和餐厅位置的使用
[ 展开 ]
立即预约
在线咨询
首页
设计案例
设计精英
装修报价
在线咨询
装修快速预约
您的姓名 :
*
联系方式 :
*
您的城市 :
请选择市...
佛山
广州
请选择区...
楼盘名称 :
建筑面积 :
m²
取消
*为了您的权益,您的隐私将被严格保密