设计师:万征国作品数量:20

设计级别:资深设计师    设计经验:22年
擅长风格:简约,简欧,美式,新中式,轻奢,意式,中古

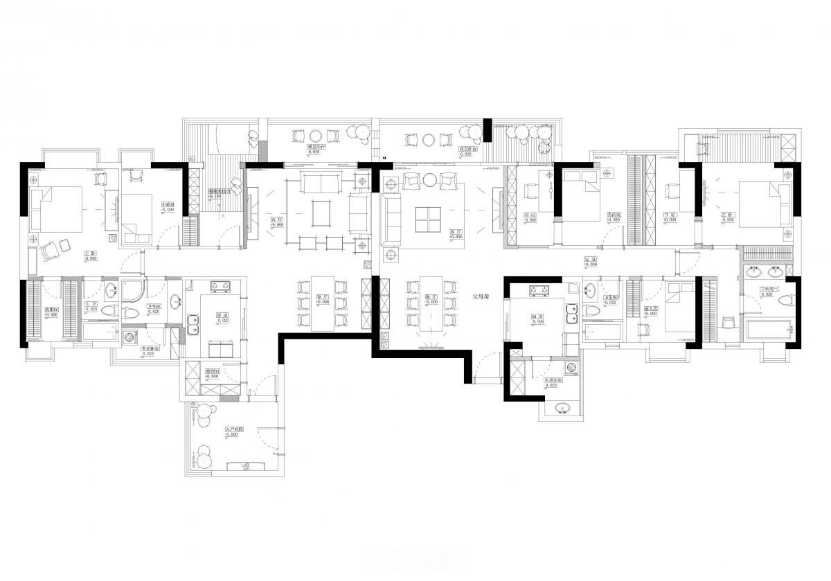
荷塘月色潘府

户型:五室两厅 面积:280㎡ 设计风格:新古典 工程造价:65万

设计说明

本案为温州企业家量身打造同层并排双套居室,一套承载业主夫妇的日常起居,以新古典风格铺陈岁月质感;一套赠予待嫁女儿作为婚房,用轻法式风格勾勒浪漫憧憬。双居比邻而居,既维系家人间的亲密联结,又各自保有独立的生活格调,于繁华广州的都市语境里,构筑一处兼具家族温度与审美个性的栖居之所。

[ 展开 ]
首页 设计案例 设计精英 装修报价 在线咨询
装修快速预约
您的姓名 : *
联系方式 : *
楼盘名称 :
建筑面积 :
取消

*为了您的权益,您的隐私将被严格保密