设计师:星艺设计师作品数量:1078

设计级别:设计师    设计经验:11年
擅长风格:简约,田园,简欧,中式,欧式,美式,现代

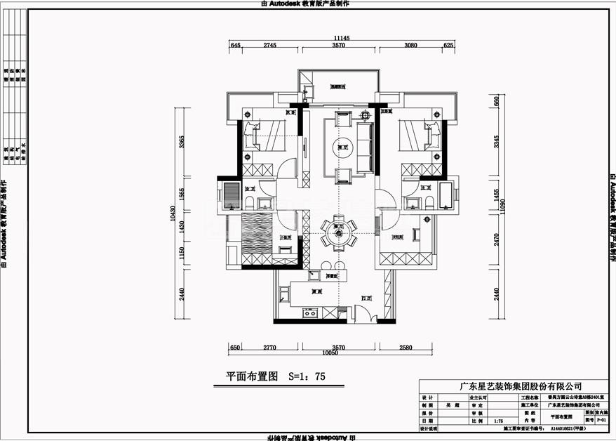
番禺方圆云山诗意A8栋2401室

户型: 面积:130㎡ 设计风格:现代 工程造价:万

设计说明

本案空间简洁,色调以黑白灰为主,空间整体给人一份宁静,在大城市的嘈杂,回到家给居住在这个空间会平复心灵,拿一份报纸一本书,静静感觉时间的过往。色调上以浅色为主:白色、灰色,水泥灰等。而材质方面以自然的元素,如木  柔软质朴的纱麻布制品等。 现代风格以简约著称,具有很浓的后现代主义特色,注重流畅的线条设计,代表了一种时尚,回归自然,崇尚原木韵味,外加现代、实用、精美的艺术设计风格,正反映出现代都市人进入新时代的某种取向与旋律。

[ 展开 ]
首页 设计案例 设计精英 装修报价 在线咨询
装修快速预约
您的姓名 : *
联系方式 : *
楼盘名称 :
建筑面积 :
取消

*为了您的权益,您的隐私将被严格保密