设计师:星艺设计师作品数量:1078

设计级别:设计师    设计经验:11年
擅长风格:简约,田园,简欧,中式,欧式,美式,现代

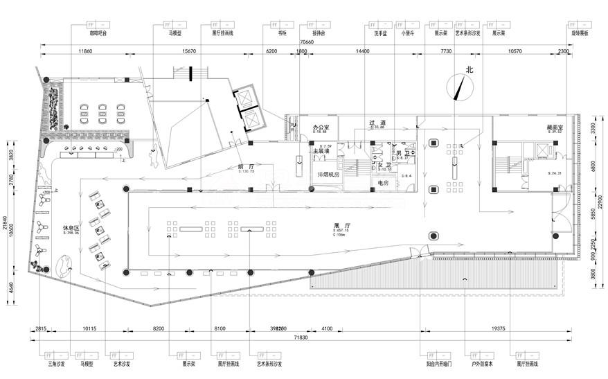
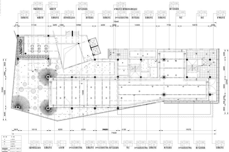
东山谷美术馆

户型:商业空间 面积:1800㎡ 设计风格:现代 工程造价:万

设计说明

【设计说明】本案位于广东省梅州市(一个有着浓郁的客家文化的城市)室内面积约1800平方,分休闲区和展示区,其它为功能室,东山谷美术馆项目的主题(人文、生态、艺术)想要表达的是客家传统文化和当化艺术的结合,空间主要白色为主体色,通过蘑菇的表现形式做为空间的点睛之处,也能为美术馆的展现形式增加不同艺术气氛。

[ 展开 ]
首页 设计案例 设计精英 装修报价 在线咨询
装修快速预约
您的姓名 : *
联系方式 : *
楼盘名称 :
建筑面积 :
取消

*为了您的权益,您的隐私将被严格保密