设计师:星艺设计师作品数量:1078

设计级别:设计师    设计经验:11年
擅长风格:简约,田园,简欧,中式,欧式,美式,现代

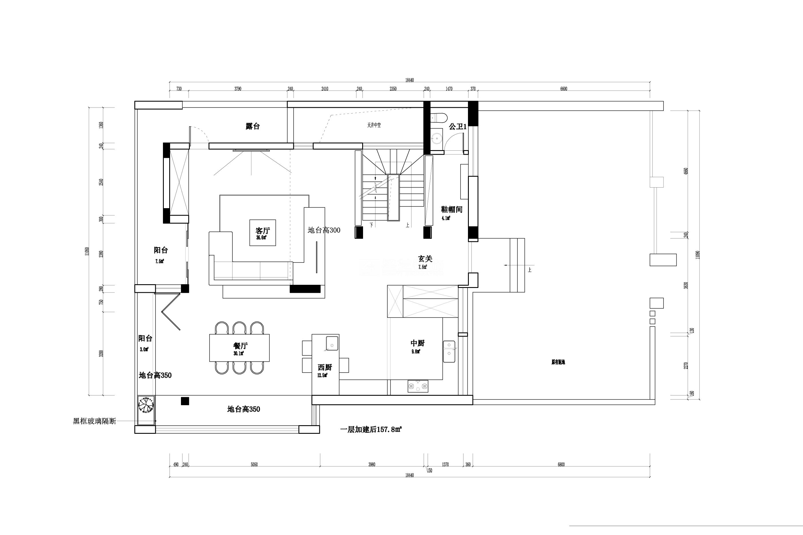
万科城马宅

户型:别墅 面积:400㎡ 设计风格:现代 工程造价:万

设计说明

本案以“璞”为主题,从中国古代文人理想的园林环境中获得灵感,在建筑的外部增加格栅做成的回廊,靠窗设置平台,模糊室内外界限,给居住者创造与自然亲密接触的生活场景。去除多余装饰,探索用现代化的元素实现悦情自然,注重内在精神世界的居住环境。

[ 展开 ]
首页 设计案例 设计精英 装修报价 在线咨询
装修快速预约
您的姓名 : *
联系方式 : *
楼盘名称 :
建筑面积 :
取消

*为了您的权益,您的隐私将被严格保密