设计师:星艺设计师作品数量:1078

设计级别:设计师    设计经验:11年
擅长风格:简约,田园,简欧,中式,欧式,美式,现代

华南理工南秀村李先生

户型:四室两厅 面积:160㎡ 设计风格:简约 工程造价:23万

设计说明

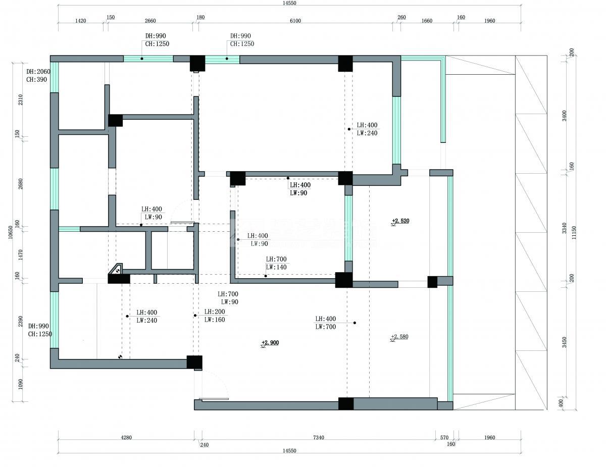
原建布置分析:本案四房,其中有一房一卫没有窗户,通风采光非常不合理。另外还有两个房间为了采光问题,彼此之间用窗户做间隔,导致私密性不高。 方案优化:保留四房结构,将房型动线重新划分使生活更方便,每个空间都有独立采光通风和私密性,互不干扰。 设计理念:由于业主夫妻是从事教育工作,本案想为其打造一个宁静的意境。所以会采用灰色哑光地砖及原木色的家私作为主调来营造大自然的气氛。

[ 展开 ]
首页 设计案例 设计精英 装修报价 在线咨询
装修快速预约
您的姓名 : *
联系方式 : *
楼盘名称 :
建筑面积 :
取消

*为了您的权益,您的隐私将被严格保密